







Unité de Rénovation
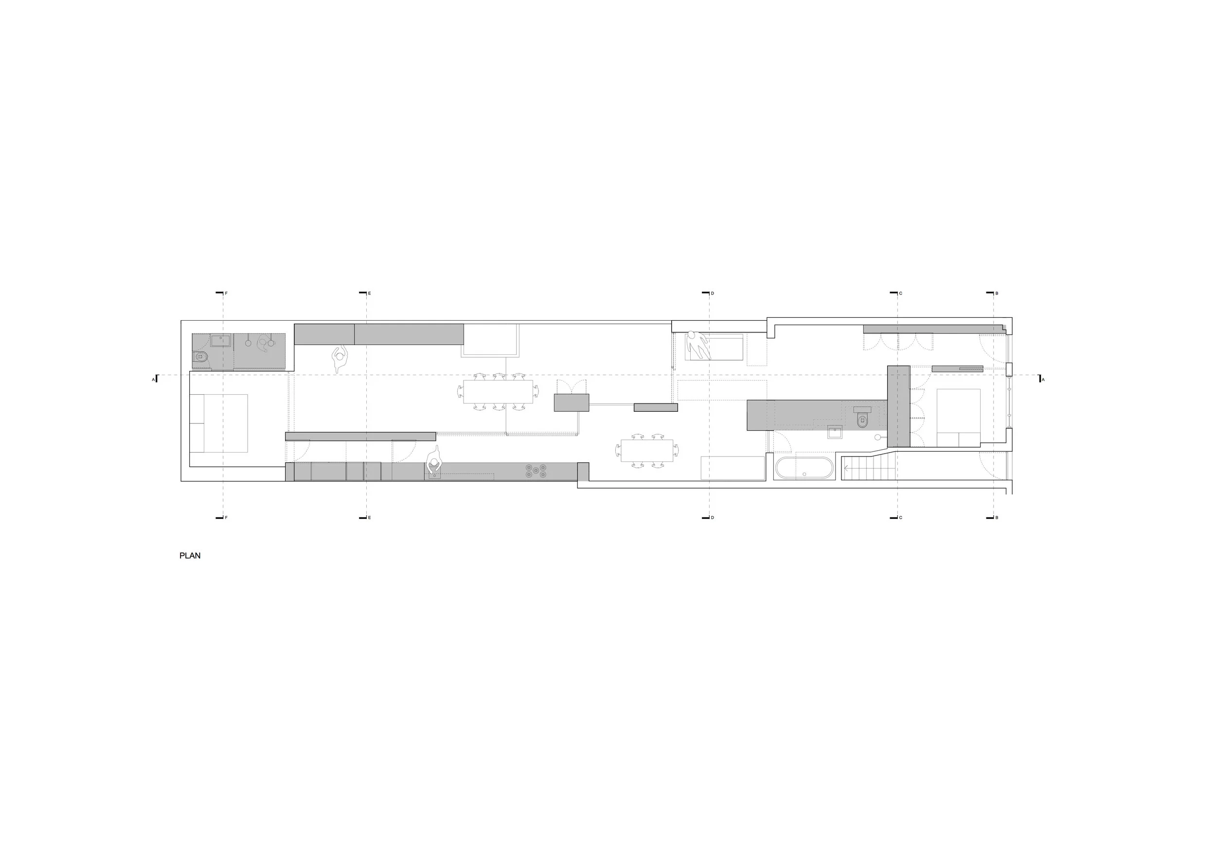
The elongated dwelling is organized around a courtyard with ambiguous thresholds to the adjacent interior spaces.The scheme is articulated as a continuous sleeve of modernist, open- plan space partially slotted under a Victorian terrace house. White-rendered exterior building volumes surrounding the courtyard contain smaller-scale interior forms of the same sculptural vocabulary, and these elements continue under the brick building mass above the other half of the scheme. Moving through the residence one experiences alternating spatial expansion and compression, both horizontally and vertically. The full-width entry area compresses through a narrower work space, to a full-width dining and living area, before narrowing into the kitchen and utility area that occupies the link, then expanding to full width again in the master suite to the rear of the courtyard. A glass roof to the shower room gives this interior space the same infinite verticality as the courtyard.