Screen House
A completed project in Kentish Town, London, by WILLIAM TOZER Associates
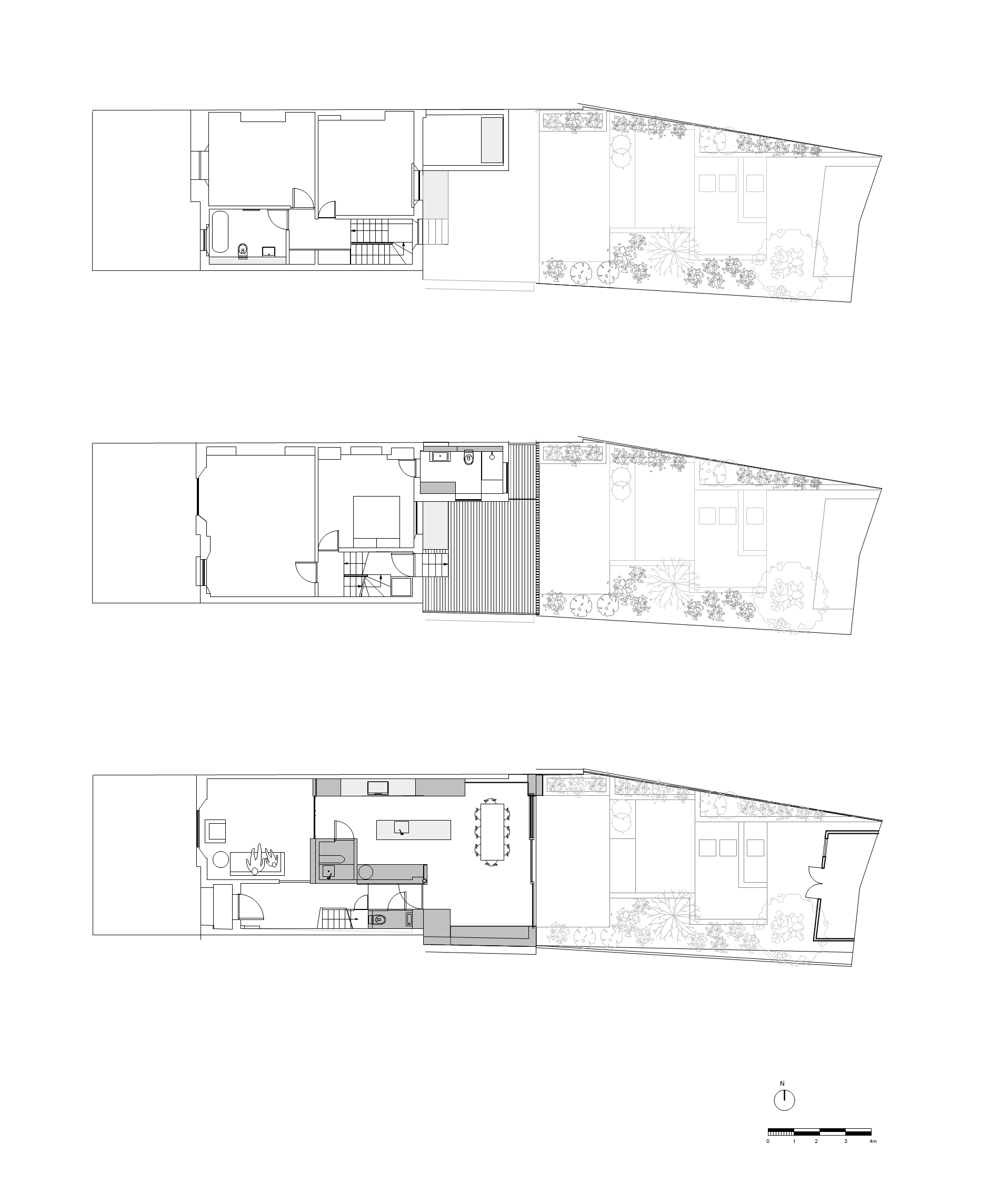
A slatted timber screen dominates the ground-floor elevation, while also functioning as a balustrade for a first-floor roof terrace. The depth of the screen precludes views to and from neighboring properties, while providing uninterrupted sight lines between the house and its own garden. Behind the screen is a roof terrace clad in the same timber, which folds up to form a wall, separating this outdoor space from the adjoining house. Steps from the terrace to the interior are expressed in the ceiling of the new space below, clad in timber to match the floorboards. A collection of white rectilinear volumes and planes are arrayed through the ground floor to loosely divide the open-plan interior space—and slip under the timber screen to complete the external enclosure. A first-floor shower room is articulated externally as one white volume—similarly rectilinear, but larger and incised by window openings.
