PAVILION CAFE
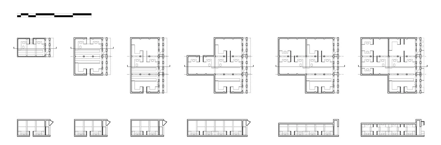
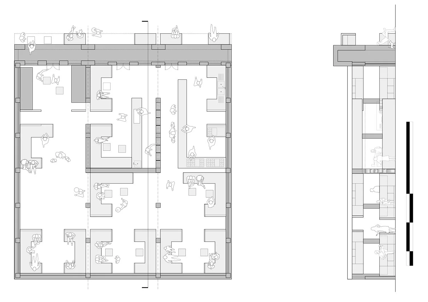
This pavilion cafe proposal, takes as its starting point the Kärntner Bar in Vienna, designed by Adolf Loos in the early years of the Twentieth Century. The new pavilion attempts to give physical form to the perceived space in Loo’s scheme. Where in the Kärntner Bar high-level mirrors create the illusion that the bar is only a small intimate room within a much larger space, the form of these connected spaces is speculated upon to provide the other areas required by the new brief. The actions of mirroring, repetition, layering and illusion are deployed to determine the layout of these new spaces. The design methodology also provides a mechanism for reconfiguration of the scheme to different locations, allowing for arrangements of different sizes and horizontal or vertical (basement and ground floor) layouts. Material plays a key role in the overall scheme. Sterling OSB has been used to support conceptual and sculptural moves at various scales, including the utilitarian furnishings which do not distract from the perception of this. The seating, bars and counters of the pavilion cafe are articulated as sculptural elements through the application of Sterling OSB, taking advantage of its textured surface and nature to create seamless finishes, while various tables and ceiling forms are dematerialised by the illumination of the Sterling OSB strands applied thinly as a single thin layer over lightboxes. In dematerialising the OSB, the design creates a series of intimate spaces that distort perception through reflection and translucency.
