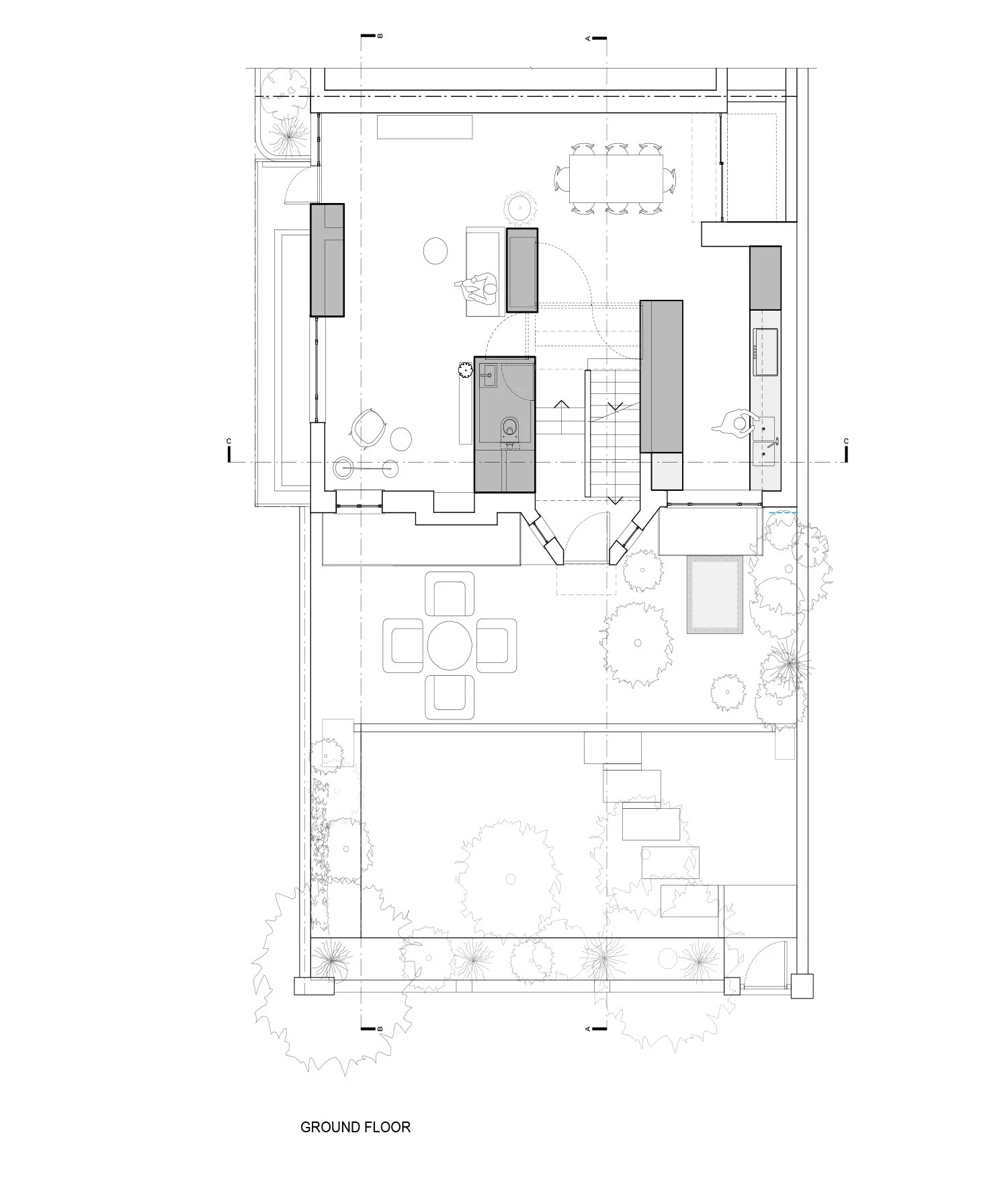
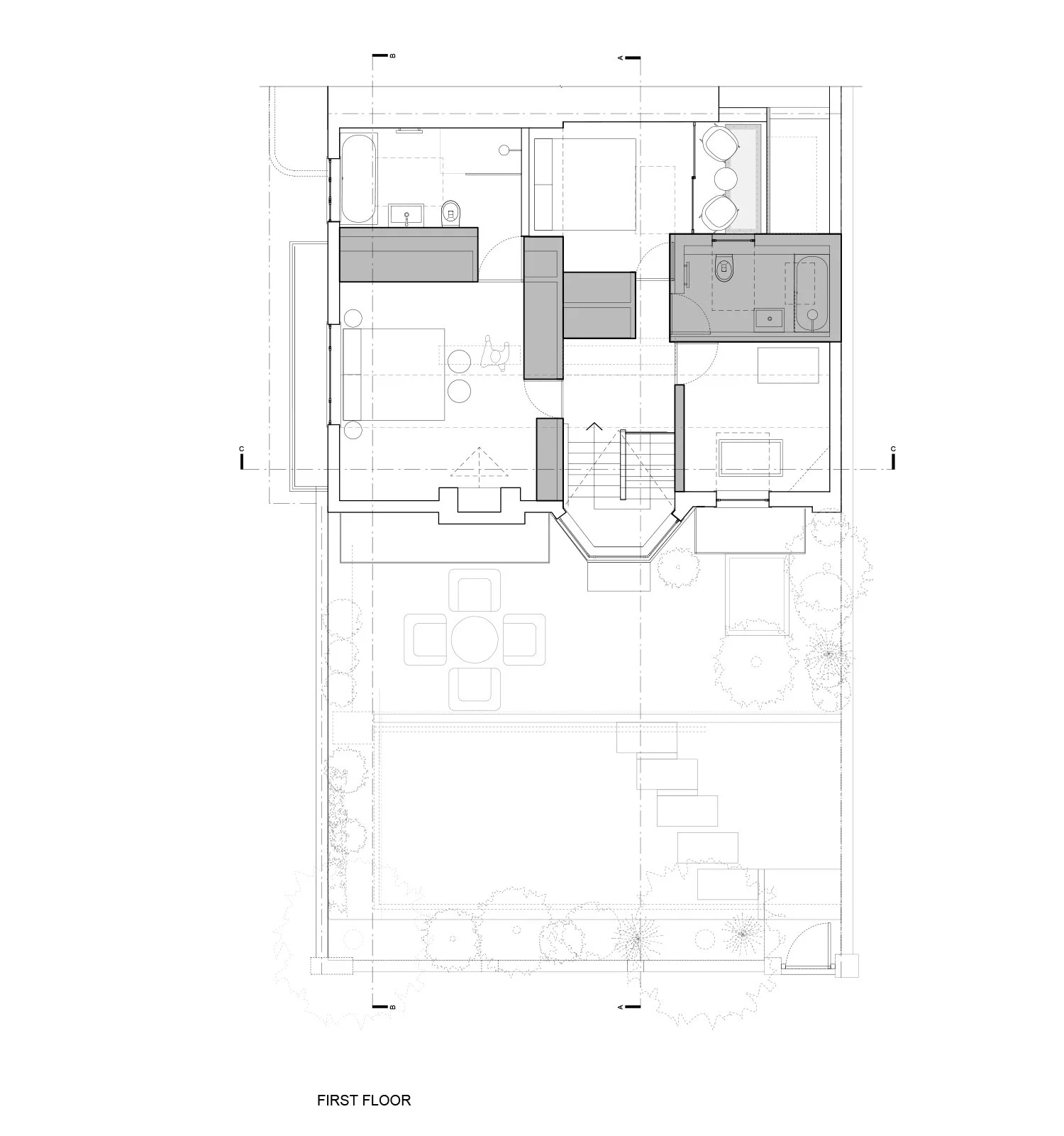
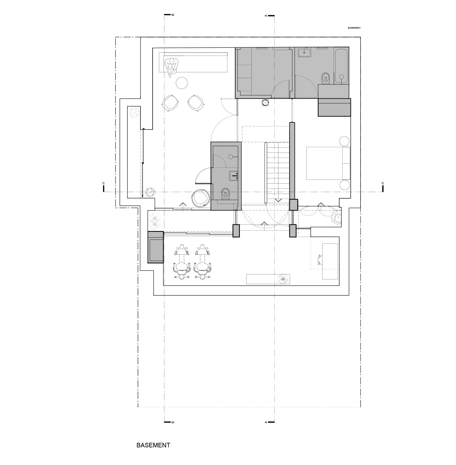
Monument House
A completed project in Hampstead, London, by WILLIAM TOZER associates.
The design of Monument House references the Müller and Moller Houses by Adolf Loos, who famously proclaimed that, ‘Only a small part of architecture belongs to architecture: the tomb and the monument’. Many of the new functional elements of the house are visually disguised as sculptural volumes and planes. Concealing doors, storage, and sometimes entire rooms, these art-like elements radiate from a central staircase, itself a sculptural composition of arrayed planes, the visual signifiers of its function hidden. Where large portions of Loos’s interiors are decorated functional elements, and his exteriors are stark sculptural compositions of rectangles, it is the historic exterior of Monument House that is a decorated functional building. A top-floor balcony, and light-well spaces that project out from the new basement level, echo the balconies of the two Loos houses. Wall cut-outs, the central rooflight, and inlaid glass floor panels similarly reference elements of both precedents.
Photography by: Lukasz Wielkoszynski, WILLIAM TOZER Associates
