



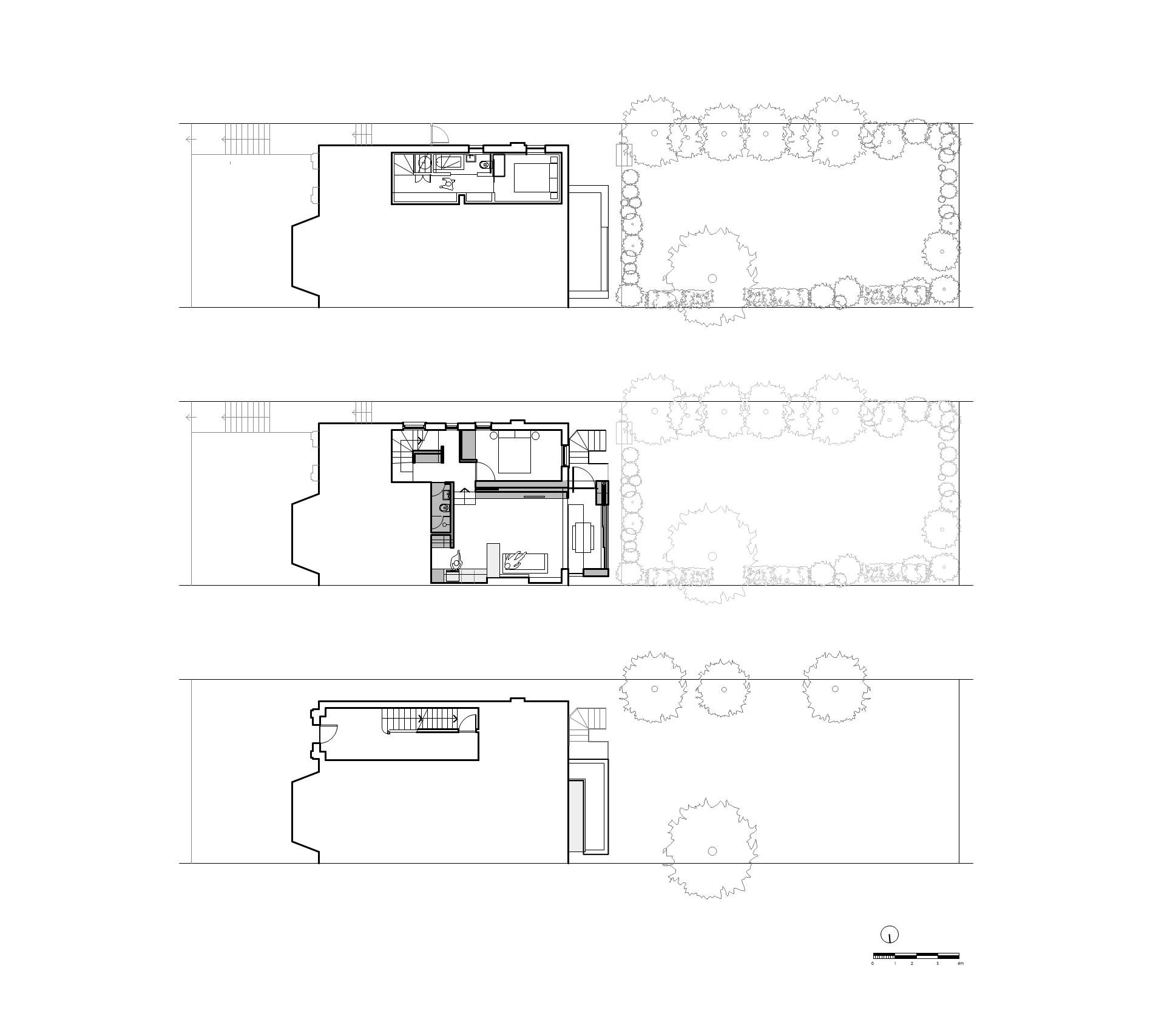
Apartment in Hampstead
A recently completed project in Hampstead, London, by WILLIAM TOZER Associates
Apartment in Hampstead
Apartment in Hampstead
A recently completed project in Hampstead, London, by WILLIAM TOZER Associates
WILLIAM TOZER Associates is an award-winning practice headquartered in London, England, currently working on projects in the UK, US, Australia and New Zealand. The practice understands architecture as compositions of abstract sculptural form and space, and discrete functional 'furnishings' at various scales. Each project curates and reframes the context and history of its site, and captures the open-endedness of the processes of demolition and construction. New Zealand-born Dr William Tozer is a British architect and holds architecture degrees from the University of Auckland, the Royal Melbourne Institute of Technology, and the Bartlett. He has taught at architecture schools in the UK and US, and writes prolifically on architecture. With experience in office, retail, exhibition, housing, and multi-unit housing sectors, Tozer founded the practice in 2002, and directs and curates the development of every project by liaising with other members of the studio.
WILLIAM TOZER Associates | 42–44 New House, 67–68 Hatton Garden, London, EC1N 8JY, United Kingdom